Portfólio - Indorama

INDORAMA VENTURES (MAUÁ/SP) – PROJETO DO ELEVADOR LABORATÓRIO ANALÍTICO


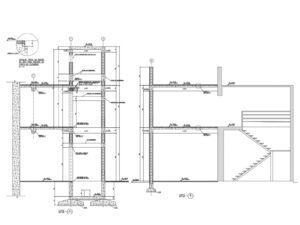
Elaboração do projeto de dimensionamento e detalhamento da estrutura do fosso do novo elevador do laboratório analítico da unidade da INDORAMA, em Mauá/SP. O projeto foi desenvolvido com base na folha de dados do fabricante do elevador, atendendo aos critérios de dimensões internas, vigamentos, pontos de fixação e demais requisitos técnicos.

Para a estrutura do fosso, adotou-se fundação rasa composta por quatro sapatas, além de pilares, vigas intermediárias e de cobertura, e laje de cobertura, todos em concreto armado. Os fechamentos laterais foram especificados em alvenaria.

Além da estrutura do fosso, foi elaborado o projeto de reforma do hall de acesso ao novo elevador, incluindo a especificação completa dos materiais de acabamento (pintura, revestimentos, forro, iluminação) e das esquadrias (portas e janelas). Também foram previstas as adequações de acessibilidade do ambiente, em conformidade com a NBR 9050:2020 – Acessibilidade a edificações, mobiliário, espaços e equipamentos urbanos.

Normas Aplicadas

NBR-6118:2014 – Projeto de Estruturas de Concreto – Procedimento;

NBR-6120:2019 – Ações para o Cálculo de Estruturas de Edificações;

NBR-6122:2022 – Projeto e Execução de Fundações;

NBR-6123:2013 – Forças devidas ao Vento em Edificações;

NBR-8681:2004 – Ações e Segurança nas Estruturas – Procedimentos;

NBR 9050:2020 – Acessibilidade a edificações, mobiliário, espaços e equipamentos urbanos;

NBR-7480:2007 – Aço destinado a Armaduras para Estruturas de Concreto Armado – Especificação;

NBR-8800:2008 – Projeto de Estruturas de Aço e Estruturas Mistas de Aço e Concreto em Edifícios;

NBR-9062:2017 – Projeto e execução de estruturas de concreto pré-moldado;

Civil e Arquitetura

Desenhos, Memorial Descritivo, Lista de Quantitativo e Materiais e Memória de cálculo (Civil).

Fale Conosco