Projeto Hidráulico

Segurança, eficiência e economia para edifícios residenciais, comerciais e industriais

O Projeto Hidráulico é essencial para garantir o correto abastecimento de água potável e o escoamento eficiente dos efluentes de uma edificação. Ele define com precisão todas as tubulações, conexões, reservatórios, bombas e componentes hidráulicos, assegurando conforto, segurança, desempenho e economia no uso da água.

A Engenharia FMC desenvolve projetos hidráulicos completos, compatíveis com as normas técnicas vigentes e totalmente alinhados às necessidades do cliente — desde pequenas edificações até empreendimentos comerciais e industriais de grande porte.

Para que serve o Projeto Hidráulico

O projeto é indispensável para:

  • Garantir pressão e vazão adequadas em todos os pontos de consumo

  • Evitar vazamentos, falhas e incompatibilidades na obra

  • Assegurar redes de esgoto eficientes e sem retorno de odores

  • Reduzir custos de manutenção e otimizar o consumo de água

  • Atender normas técnicas e exigências legais

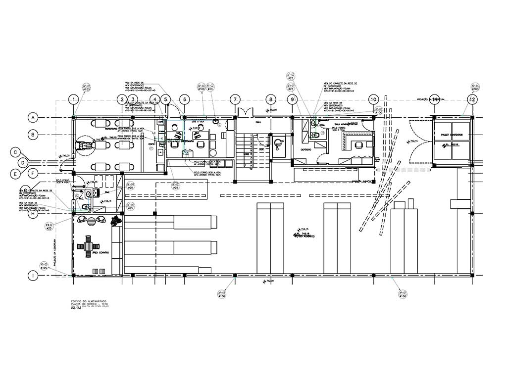
  • Compatibilizar instalações com os demais projetos da obra

Um bom projeto hidráulico evita retrabalhos, infiltrações e problemas estruturais futuros.

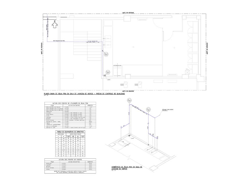
  • 1. Detalhamento de Água Fria

    Dimensionamento completo da rede de abastecimento:

    • Tubulações

    • Colunas de distribuição

    • Conexões

    • Reservatórios superiores e inferiores

    • Bombas e sistemas de pressurização

    2. Detalhamento de Esgoto Sanitário

    Projeto completo do sistema de esgoto:

    • Tubulação interna

    • Ventilações e desconectores

    • Caixas sifonadas

    • Caixas de inspeção

    • Ligações com a rede pública

    Cada detalhe é pensado para garantir eficiência, segurança e durabilidade.

  • Engenheiro habilitado com experiência em instalações hidráulicas

  • Projetos completos, claros e compatibilizados

  • Redução de custos e prevenção de patologias na obra

  • Atendimento a residências, comércios e indústrias

  • Total conformidade com as normas da ABNT

  • Entrega de plantas, memoriais e ART – Anotação de Responsabilidade Técnica

A Engenharia FMC assegura um sistema hidráulico eficiente, econômico e tecnicamente impecável, garantindo qualidade e segurança para todo o empreendimento.

Nossos Clientes

Fale Conosco