Projeto de Arquitetura
Criatividade, técnica e funcionalidade para obras residenciais, comerciais e industriais
O Projeto de Arquitetura é o ponto de partida para qualquer construção ou reforma. Ele define a estética, a funcionalidade, o aproveitamento do terreno e a experiência do usuário dentro do espaço.
A Engenharia FMC desenvolve projetos arquitetônicos completos, modernos e tecnicamente eficientes, alinhando design, desempenho, normas urbanísticas e conforto — sempre focados na necessidade real de cada cliente.
Atuamos em projetos residenciais, comerciais e industriais com precisão técnica, criatividade e responsabilidade.
O que entregamos no Projeto Arquitetônico da Engenharia FMC
1. Projeto de Implantação
Definição estratégica do posicionamento da edificação no terreno, considerando:
Recuos
Níveis
Insolação
Ventilação
Acessos e circulação
2. Projeto Conceitual
Construção da identidade do projeto, incluindo:
Ideia de design
Volumetria inicial
Estudo de formas e massas
Referências visuais
Conceito estético e funcional
É nesta etapa que o cliente visualiza o “DNA” da obra.
3. Projeto Executivo Completo (Residencial, Comercial e Industrial)
Detalhamento técnico completo com:
Plantas baixas
Fachadas
Cortes
Layout dos ambientes
Especificações e dimensões
Compatibilização técnica com demais disciplinas
O projeto executivo garante que a obra seja executada com precisão e sem retrabalhos.
4. Projeto Renderizado – Imagens 3D
Modelagem realista para visualização do resultado final:
Perspectivas internas e externas
Volumetria detalhada
Ambientação e materiais
Simulação de iluminação
Perfeito para aprovação de clientes, investidores e condomínios.
5. Projeto de Reforma
Readequação de espaços com:
Redistribuição interna
Atualização estrutural e estética
Soluções sob medida para necessidades atuais
Ideal para residências, comércios e indústrias.
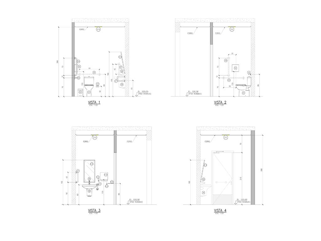
6. Projeto de Acessibilidade (NBR 9050)
Atendimento completo às normas de acessibilidade:
Circulação
Rampas, corrimãos e sanitários acessíveis
Dimensões normativas
Adequações para edificações novas e existentes
Essencial para conformidade legal e segurança de todos os usuários.
7. Memorial Descritivo
Documento técnico detalhado contendo:
Materiais especificados
Padrões de acabamento
Diretrizes de execução
Informações normativas
Fundamental para obras, licitações, construtoras e fiscalização.
Por que contratar a Engenharia FMC para o seu Projeto Arquitetônico
Soluções modernas, funcionais e personalizadas
Profissionais experientes em arquitetura e engenharia
Projetos esteticamente equilibrados e tecnicamente precisos
Atendimento a residências, comércios e indústrias
Compatibilização com projetos estruturais, elétricos e hidráulicos
Redução de custos, prazos e retrabalhos na obra
Responsabilidade técnica garantida (ART)
A Engenharia FMC une criatividade e engenharia para entregar projetos arquitetônicos bonitos, funcionais e tecnicamente impecáveis.
Nossos Clientes













































