Projeto de Estrutura de Concreto
Segurança, precisão e desempenho estrutural para qualquer tipo de obra
O Projeto de Estrutura de Concreto Armado é uma das etapas mais importantes de qualquer construção. É nele que são definidos, calculados e detalhados todos os elementos estruturais responsáveis por garantir segurança, estabilidade, durabilidade e funcionalidade da edificação.
A Engenharia FMC desenvolve projetos estruturais completos, atendendo empreendimentos residenciais, comerciais, industriais e logísticos, com rigor técnico e total conformidade às normas brasileiras (ABNT).
Nosso compromisso é entregar soluções eficientes, econômicas e seguras, reduzindo riscos, evitando retrabalhos e garantindo excelente desempenho da obra.
O que está incluído no Projeto Estrutural de Concreto da Engenharia FMC
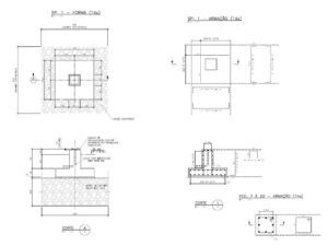
Fundações Rasas
Dimensionamento preciso para garantir estabilidade e segurança:
Sapatas
Radier
Blocos de fundação
Fundações Profundas
Projetos para solo de baixa resistência ou cargas elevadas:
Estacas pré-moldadas
Estacas hélice contínua
Estaca raiz
Supestruturas
Detelhamento completo de todos os elementos estruturais do edifício:
Vigas
Pilares
Lajes
Edificações em Geral
Projetos para obras:
Residenciais
Comerciais
Industriais
Galpões
Prédios institucionais
Projetos Estruturais Complementares
A Engenharia FMC também projeta estruturas especiais e elementos complementares essenciais para uma obra completa e segura:
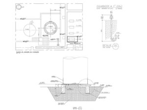
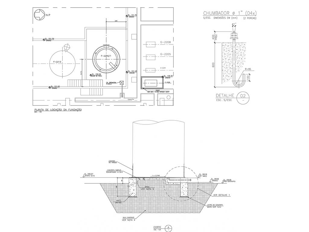
Base de tanques
Base de caixa d’água
Base de bombas
Base para suporte de tubulações
Estrutura do fosso de elevadores
Caixa / reservatório de acúmulo (drenagem)
Base para poste de iluminação
Caixas de passagem de elétrica
Envelopes de concreto
Dique de contenção e taludes
Muros e alambrados
Balança rodoviária
Reforço estrutural para adequações e ampliações
Documentos Técnicos Entregues
Cada projeto inclui documentação completa e organizada:
Lista de quantitativos e materiais
Memorial descritivo
Memória de cálculo estrutural
Detalhamentos técnicos e plantas executivas
Tudo elaborado com precisão, clareza e responsabilidade técnica, facilitando o trabalho de construtoras, arquitetos e equipes de obra.
Por que contratar a Engenharia FMC para seu Projeto Estrutural
Engenheiro civil com ampla experiência em projetos estruturais
Soluções inteligentes que reduzem custos e otimizam materiais
Atendimento a obras residenciais, comerciais e industriais
Rigor técnico alinhado às normas da ABNT
Projetos claros, detalhados e fáceis de executar
Suporte técnico durante toda a obra
Responsabilidade técnica garantida (ART)
Com a Engenharia FMC, você tem um projeto estrutural confiável, seguro e economicamente eficiente — exatamente como sua construção exige.
Nossos Clientes





























