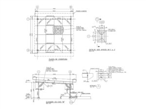
Projeto de Estrutura Metálica
Solidez, desempenho e eficiência para obras industriais, comerciais e residenciais
O Projeto de Estrutura Metálica é a solução ideal para quem busca rapidez na execução, resistência superior, alto desempenho e excelente custo-benefício.
A Engenharia FMC desenvolve projetos completos em aço, com dimensionamento preciso, detalhamento executivo e especificações técnicas que garantem estabilidade, durabilidade e segurança máxima para qualquer tipo de obra.
Atendemos desde pequenas edificações até grandes empreendimentos industriais, sempre com responsabilidade técnica, conformidade normativa e foco total em eficiência.
O que inclui o Projeto de Estrutura Metálica da Engenharia FMC
Estruturas Industriais e Prediais
Projetos completos para:
Galpões industriais
Estruturas comerciais
Mezaninos
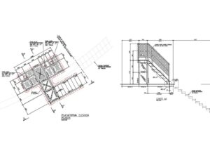
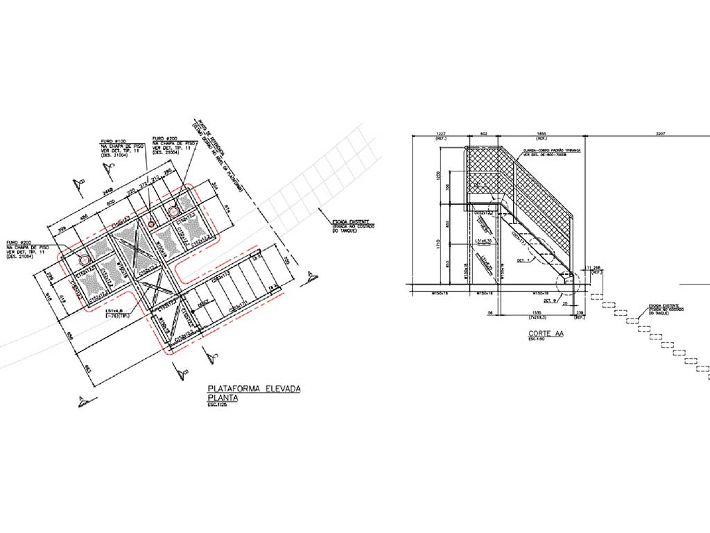
Plataformas metálicas
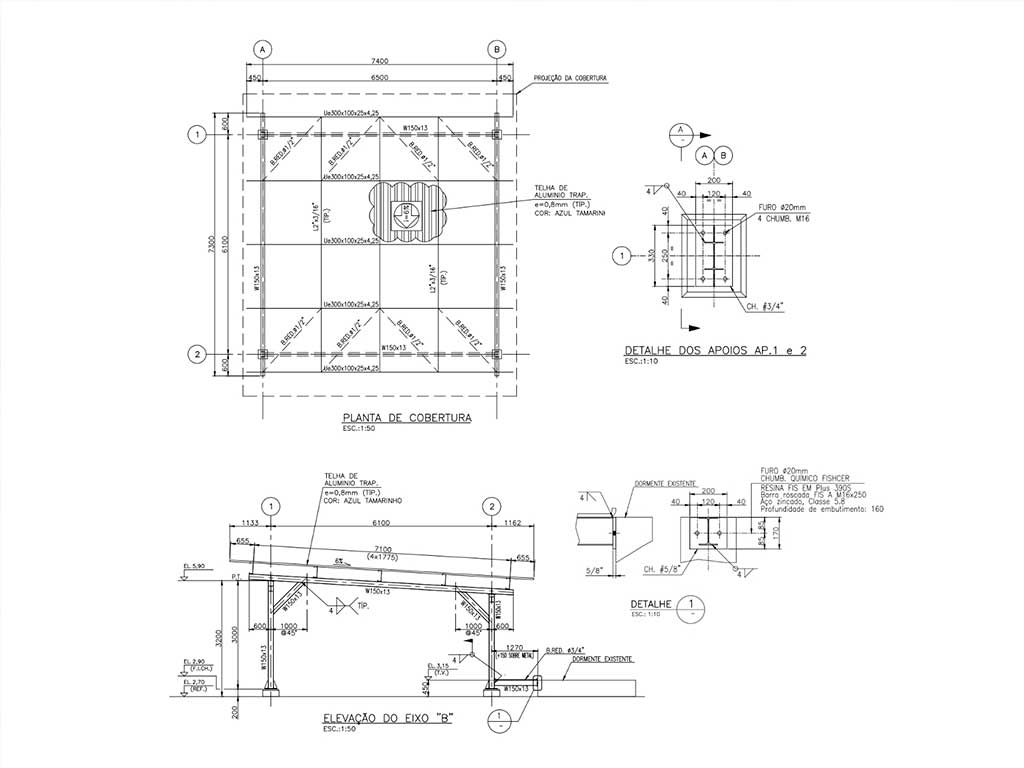
Coberturas de grande vão
Pipe racks e pipe shops
Estruturas logísticas e operacionais
Elementos Estruturais Especiais
Linha de Vida – NR 35 (Trabalho em Altura)
Projeto e instalação conforme normas de segurança para proteção de trabalhadores.
Plataformas de Carregamento e Descarga
Dimensionamento robusto para operações industriais e logísticas.
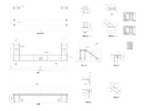
Cobertura Metálica
Soluções leves, resistentes e otimizadas para qualquer tipo de edificação.
Passarelas Metálicas
Projetos seguros para circulação de pessoas e integração entre estruturas.
Pipe Rack / Pipe Shop
Projetos industriais para suporte, organização e segurança de tubulações.
Fundações com Estacas Metálicas
Soluções rápidas e eficientes para cargas elevadas e solos complexos.
Reforço Estrutural
Adequação de estruturas existentes para ampliações, aumento de carga ou modernização.
Documentação Técnica Completa
Todos os projetos acompanham:
Memória de cálculo estrutural
Detalhamentos executivos
Listas de materiais e especificações
ART – Anotação de Responsabilidade Técnica
O resultado é um projeto claro, seguro e pronto para execução pela equipe de obra.
Por que escolher a Engenharia FMC para seu Projeto Metálico
Engenheiro especialista em estrutura metálica
Projetos otimizados, seguros e com excelente desempenho técnico
Economia de materiais e redução de custos da obra
Experiência com indústrias, galpões, condomínios e obras comerciais
Alto padrão de precisão e responsabilidade técnica
Suporte completo desde o dimensionamento até a execução
Quando a obra exige rapidez, segurança e eficiência, a estrutura metálica projetada pela Engenharia FMC é a melhor escolha.
Nossos Clientes



































