Projeto de Arruamento e Pavimentação
Mobilidade, segurança e durabilidade para vias urbanas, industriais e logísticas
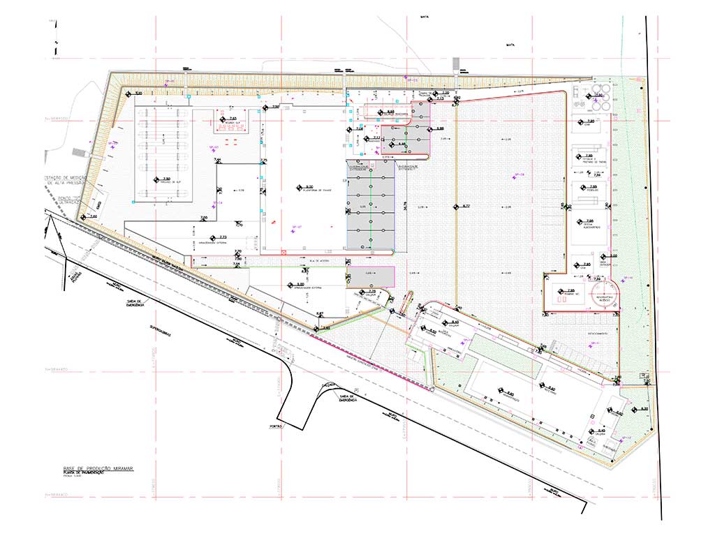
O Projeto de Arruamento e Pavimentação é essencial para garantir vias seguras, eficientes e duráveis — seja em áreas urbanas, condomínios, loteamentos, indústrias ou centros logísticos.
A Engenharia FMC desenvolve projetos completos que melhoram as condições de tráfego, aumentam a vida útil do pavimento e reduzem significativamente os custos de manutenção ao longo do tempo.
Com base em estudos técnicos, análises de solo e dimensionamento preciso, entregamos soluções que atendem às normas e às necessidades reais de circulação de veículos leves e pesados.
O que está incluído no Projeto de Arruamento e Pavimentação da Engenharia FMC
1. Levantamento Topográfico Completo
Mapeamento preciso da área para definição do traçado, inclinações e condições do terreno.
2. Estudos Geotécnicos do Solo
Análises para determinar a capacidade de suporte e o tipo ideal de pavimento.
3. Dimensionamento do Pavimento
Definição do pavimento ideal para o tráfego previsto:
Vias urbanas
Estacionamentos
Acessos industriais
Corredores logísticos
4. Drenagem Pluvial Integrada
Projeto de drenagem para evitar alagamentos, erosões e degradação precoce.
5. Projeto Geométrico da Via
Traçado, largura, curvas, inclinações e elementos de segurança.
Soluções Específicas Desenvolvidas pela Engenharia FMC
Detalhamento de Pavimentação
Arruamento
Calçadas
Guias e sarjetas
Acessos e áreas de circulação
Projeto de Área de Estacionamento
Dimensionamento ideal para carros, motos, ônibus e veículos pesados.
Estudo de Giro de Veículos Pesados
Simulação técnica de manobras de:
Caminhões
Rodotrem
Bitrem
Carretas longas
Máquinas industriais
Garantindo que a via atenda às necessidades operacionais do cliente.
Definição da Seção Típica de Pavimento
Especificação completa das camadas:
Subleito
Sub-base
Base
Revestimento
Com materiais e espessuras definidas segundo estudos de carga e solo.
Por que contratar a Engenharia FMC
Projetos completos, seguros e com alta durabilidade
Especialista em pavimentação urbana, industrial e logística
Soluções alinhadas às normas técnicas e às necessidades do cliente
Redução de custos de manutenção ao longo da vida útil da obra
Entrega de plantas, memoriais, quantitativos e ART
Atendimento a construtoras, empresas, condomínios, loteamentos e prefeituras
A Engenharia FMC garante vias mais seguras, funcionais e feitas para durar — com planejamento técnico e qualidade superior.
Nossos Clientes



































