Portfólio - Ipiranga
IPIRANGA (PAULÍNIA/SP) – PROJETO PLATAFORMA DE DESCARGA DE VTs – B100
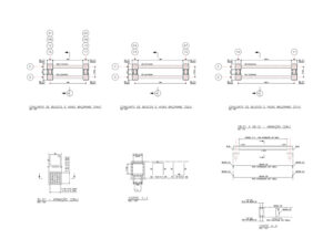
Elaboração do projeto para implantação da nova plataforma de descarga de vagões ferroviários na unidade da IPIRANGA em Paulínia/SP. O escopo contemplou o dimensionamento e o detalhamento da estrutura metálica da plataforma, incluindo escadas, guarda-corpo, passarela e linha de vida, bem como o dimensionamento de sua fundação, composta por blocos estaqueados em concreto armado, interligados por vigas de travamento.
A plataforma foi implantada em uma área com diversas interferências de estruturas existentes. Por esse motivo, foi fundamental prever, na fase de projeto, o posicionamento adequado das colunas metálicas e de suas fundações, de forma a evitar conflitos durante a execução da obra que pudessem comprometer sua construção.
Normas Aplicadas
NBR-6118:2014 – Projeto de Estruturas de Concreto – Procedimento;
NBR-6120:2019 – Ações para o Cálculo de Estruturas de Edificações;
NBR-6122:2022 – Projeto e Execução de Fundações;
NBR-6123:2013 – Forças devidas ao Vento em Edificações;
NBR-8681:2004 – Ações e Segurança nas Estruturas – Procedimentos;
NBR-7480:2007 – Aço destinado a Armaduras para Estruturas de Concreto Armado – Especificação;
NBR-8800:2008 – Projeto de Estruturas de Aço e Estruturas Mistas de Aço e Concreto em Edifícios;
NBR-9062:2017 – Projeto e execução de estruturas de concreto pré-moldado;
NR35 – Trabalho em altura.
Disciplinas
Civil e Arquitetura
Entregáveis
Desenhos, Memorial Descritivo, Lista de Quantitativo e Materiais e Memória de cálculo (Civil e Metálica).





