Portfólio - Ultragaz
ULTRAGAZ (SANTOS-SP) – PROJETO NOVO ACESSO DE SANTOS
Desenvolvimento do projeto de pavimentação e drenagem do novo acesso à unidade da ULTRAGAZ em Santos/SP.
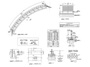
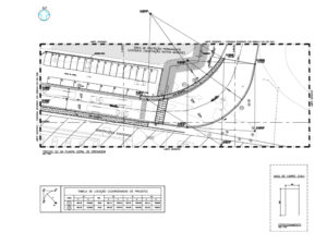
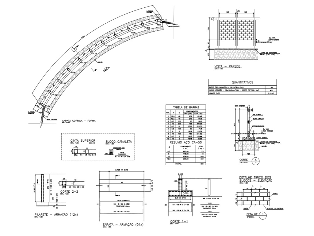
O escopo incluiu o dimensionamento e o detalhamento de uma ponte em concreto armado sobre estacas para a travessia da área de manguezal, bem como o projeto completo de arruamento e pavimentação do acesso. Foram definidos o pavimento em blocos intertravados de concreto e as respectivas camadas de base, sub-base e subleito. Além disso, foi projetado o sistema de drenagem pluvial superficial, abrangendo guias, sarjetas, calçadas e bases para instalação dos postes de iluminação, detalhamento de alambrado e muro para delimitação da área.
Normas Aplicadas
NBR-6118:2014 – Projeto de Estruturas de Concreto – Procedimento;
NBR-6122:2022 – Projeto e Execução de Fundações;
NBR-8681:2004 – Ações e Segurança nas Estruturas – Procedimentos;
NBR-7480:2007 – Aço destinado a Armaduras para Estruturas de Concreto Armado – Especificação;
NBR-9062:2017 – Projeto e execução de estruturas de concreto pré-moldado;
Disciplinas
Civil (Pavimentação e Drenagem).
Entregáveis
Desenhos, Memorial Descritivo, Lista de Quantitativo e Materiais e Memória de cálculo.





