Portfólio - Aquapolo
PROJETO NOVO ALMOXARIFADO E REFORMA DO PRÉDIO ADMINISTRATIVO
Elaboração do projeto para construção do novo almoxarifado e reforma/ampliação do prédio administrativo na unidade da AQUAPOLO, em São Caetano do Sul.
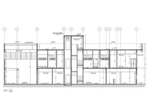
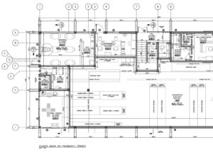
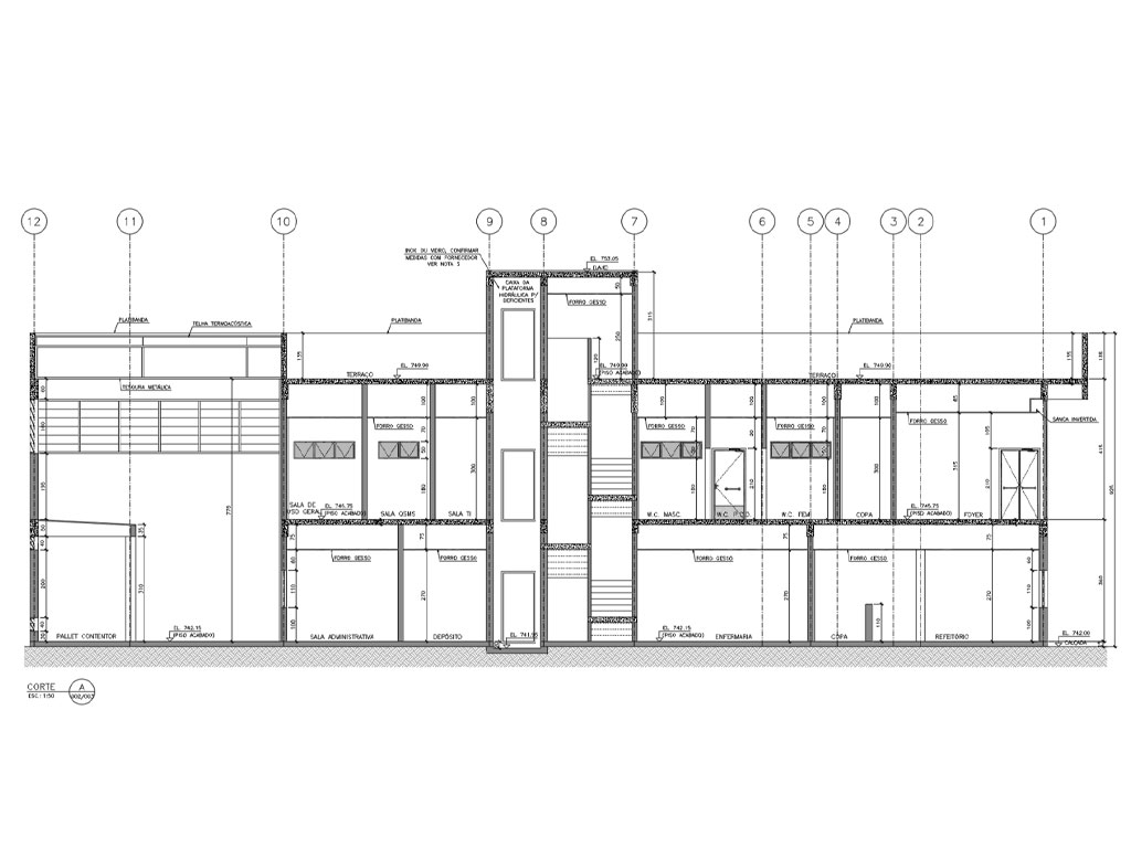
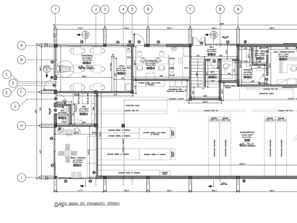
Para a construção da nova edificação do almoxarifado, composta por três pavimentos, foi desenvolvido o projeto completo da estrutura (infraestrutura e superestrutura), incluindo radier, vigas, pilares e lajes em concreto armado, além dos fechamentos em alvenaria. Também foi elaborada a projetação hidrossanitária (água fria e esgoto) dos ambientes de copa e banheiros, bem como todo o sistema de captação e drenagem pluvial da cobertura.
A reforma do prédio administrativo contemplou a ampliação da edificação por meio da execução de novas estruturas em concreto armado — fundações, vigas, pilares e lajes —, incluindo a especificação completa dos materiais de acabamento (pintura, revestimentos, forros e iluminação) e das esquadrias (portas e janelas).
Normas Aplicadas
NBR-6118:2014 – Projeto de Estruturas de Concreto – Procedimento;
NBR-6120:2019 – Ações para o Cálculo de Estruturas de Edificações;
NBR-6122:2022 – Projeto e Execução de Fundações;
NBR-6123:2013 – Forças devidas ao Vento em Edificações;
NBR-8681:2004 – Ações e Segurança nas Estruturas – Procedimentos;
NBR 9050:2020 – Acessibilidade a edificações, mobiliário, espaços e equipamentos urbanos;
NBR-7480:2007 – Aço destinado a Armaduras para Estruturas de Concreto Armado – Especificação;
NBR-8800:2008 – Projeto de Estruturas de Aço e Estruturas Mistas de Aço e Concreto em Edifícios;
NBR-9062:2017 – Projeto e execução de estruturas de concreto pré-moldado;
Disciplinas
Civil, Arquitetura, Hidráulica e Drenagem.
Entregáveis
Desenhos, Memorial Descritivo, Lista de Quantitativo e Materiais e Memória de cálculo (Civil).




